В этой статье мы рассмотрим, из каких этапов складывается дизайн-проект. Для корректной работы консультанта Фэн Шуй лучше представлять, как и с чем работает дизайнер, чтобы дать ему больше полезной информации для работы над проектом. Если вы или заказчик будете самостоятельно выполнять перепланировку, то эта информация также поможет составить проект самостоятельно.
- Составление технического задания
- Выезд на объект и выполнение обмеров
- Разработка концепции планировки
- Подготовка коллажей и мудбордов
- Визуализация
- Рабочая документация
- Комплектация
- Авторский надзор

1. Составление технического задания
Для консультанта Фэн Шуй самое главное – грамотно составить техническое задание для дальнейшей работы; оно составляется на основе рекомендаций консультанта, функциональных и эстетических предпочтениях заказчика, бюджета проектирования, сроках выполнения и планировочных требований. Лучше всего составить его совместно с заказчиком, прописать все основные рекомендации консультанта и пожелания тех, кто будет жить в квартире. Чем подробнее будет составлено техническое задание (ТЗ) по интерьеру в общем и каждому помещению отдельно, тем проще и легче будет дизайнеру спроектировать интерьер, который понравится заказчику. Затем дизайнер просматривает все рекомендации и уточняет различные вопросы, которые забыли указать либо трактуются двояко. Таким образом формируется полноценное ТЗ, с которым всем в дальнейшем будет удобно работать и который будет иметь юридическую силу на случай недобросовестно сделанной работы.
Формат подачи может быть любым – просто текст, таблица или красивый творческий альбом. Он должен содержать в себе следующую основную информацию:
- указание сторон, подписывающих техническое задание на разработку интерьера (Ф.И.О., или название организации, если одна или обе стороны – юридические лица);
- подробное описание пожеланий заказчика по параметрам, касающихся дизайн-проекта квартиры или дома (общая информация, стилевые предпочтения, инженерные решения, мебель и оборудование, референсы, ценовая ориентация и доп. пожелания);
- фотографии и обмеры с объекта.

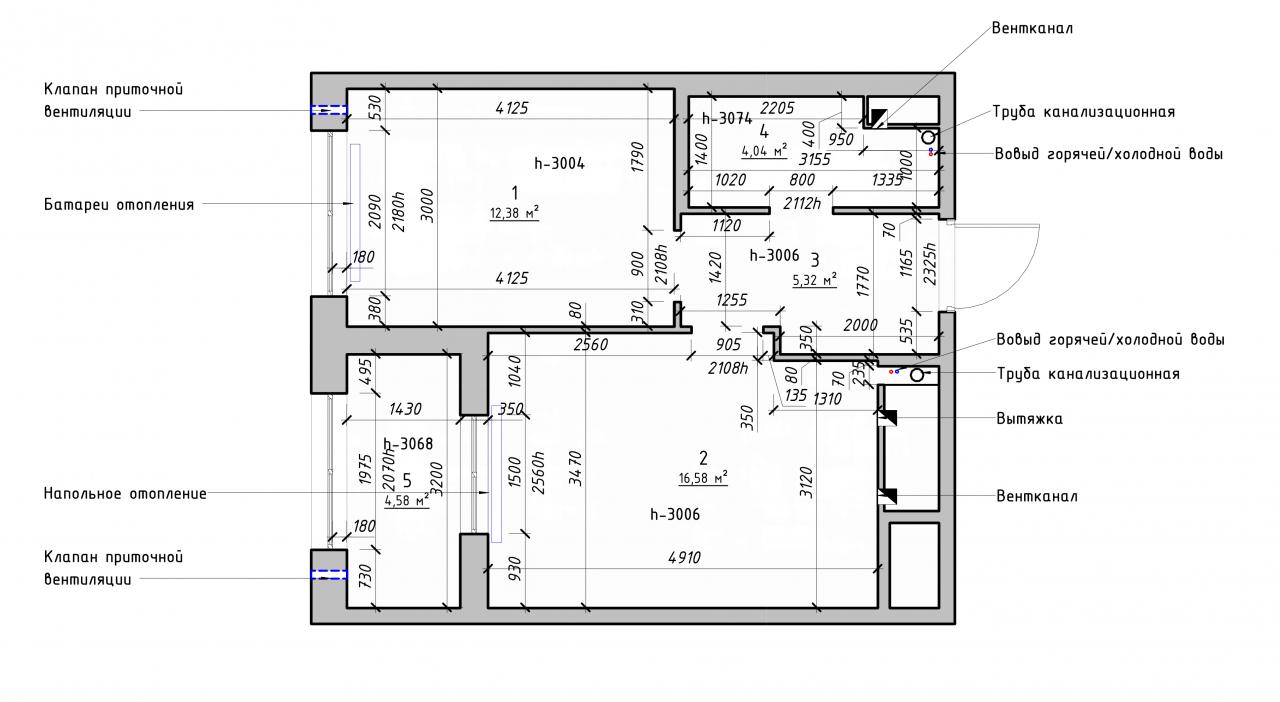
2. Выезд на объект и выполнение обмеров
После ознакомления с техническим заданием необходимо выехать на объект и ознакомить дизайнера на месте со всеми деталями. Если вы рассматриваете удаленного проектировщика, то нужно сделать подробную фото и видео фиксацию, чтобы было четкое представление об объемах и габаритах помещения. После визуального ознакомления с пространством делается подробный обмерный план помещения, даже если есть план БТИ или кто-то уже сделал до Вас, то всё равно делается новый обмерный план. Его делает сам дизайнер, либо он привлекает дополнительных специалистов. В обмерный план входит:
- Все размеры помещений
- Высоты помещений
- Привязки окон, дверей, проёмов
- Отмечаются все архитектурные элементы
- Отметки несущих и не несущих стен, колонн
- Отметки, где проходят коммуникации или выводы для них

3. Разработка концепции планировки
Составление концепции планировки, пожалуй, самая ответственная и креативная стадия проектирования. Дизайнеру необходимо создать визуальное и смысловое единство всех составляющих элементов внутреннего оформления. Связать общее планировочное решение всей квартиры с решением по каждой отдельной зоне жилого помещения.
Концепция включает в себя стилистическое и цветовое решение интерьера, выбор мебели и отделочных материалов на этапе эскизного предложения.
В ней необходимо связать воедино решения всех отдельных вопросов и проблем, свести к различным вариантам решения и выбрать из них наиболее эффективное и максимально удовлетворяющее потребности заказчика с учетом всей ситуации и конкретных вещей в частности. При разборке планировки следует учитывать следующие факторы:
- Конструктивные элементы
- Инженерные системы
- Функциональность
- Эргономику
- Пропорции и масштаб
- Иерархию и акценты


4. Подготовка коллажей и мудбордов
Мудборд (moodboard) – доска настроений, один из самых удобных способов визуальной подачи первоначальной идеи, которая составляется из картинок, фотографий, надписей и указаний, содержащих в себе общую идею, для того, чтобы визуально и эстетически передать настроение и основной смысл. Его, возможно, составить как собственными руками, подобрать различные фактуры, цвета, материалы, вырезки из журналов, открытки и рисунки так и с помощью различных графических программ.
Конечно, по таким картинкам нельзя точно указать, где и что будет точно располагаться, но с помощью них возможно подобрать образы и ассоциации, которые помогут определиться со стилистикой, общей визуальной концепцией проекта и найти понимание в работе между заказчиком и дизайнером. Мудборды помогают быстро опередить образ конечного результата, согласовать его и переходить к более детальной проработке.
Несколько пунктов, которые помогут сделать вдохновляющий мудборд:
- Придерживайтесь общей идеи и наглядности
- Объедините элементы с помощью цвета
- Пользуйтесь цветовым кругом
- Добавьте короткие надписи или слоганы
- Уходя в детали, следите за целостностью общей композицией
- Вдохновитесь готовыми примерами на Pinterest, Behance и Dribbble
Для того, чтобы мудборд получился и помог вам в обустройстве и понимании будущего пространства, не нужно быть профессиональным дизайнером или иллюстратором, всего лишь необходимо подобрать вдохновляющие изображения и объединить их общей идеей.

5. Визуализация
После разработки концепции и согласования общей идеи выполняется визуализация интерьера. Она может быть оформлена в разных вариантах, начиная с ручной подачи до профессиональной 3D графики. Это помогает на этапе эскизного проекта наглядно показать идею с учётом финальных материалов, фактур, цветов, освещения, элементов декора и согласовать все остальные детали для дальнейшей работы.
Если выполняете концепцию для себя и не являетесь профессиональным 3д художником, то в этом случае подбираются профильные специалисты и выполняют эту часть работы. В случае, когда работа происходит в связке с дизайнером, тогда он сам выполняет эту часть работы, либо также привлекает других специалистов.


6. Рабочая документация
Периодически заказчики пренебрегают этим этапом работы, предполагая, что реалистичные визуализации и начерченные планировки уже дают почти всю основу для работы. Но это не совсем так. Рабочая документация содержит в себе не только весёлые картинки, но и всю необходимую техническую информацию для ремонта. От подробных смет для закупки материалов до привязок выключателей и розеток. Стандартный состав рабочего проекта:
- Ведомость чертежей
- Общая ведомость отделки помещений
- Обмерный план
- План демонтажа
- План перепланировки
- План заполнения дверных проёмов
- План с мебелью
- План привязки сантехники
- Сантехническое оборудование
- Схема кухни
- План розеток
- План освещения
- Виды освещения
- План напольных покрытий
- Виды напольных покрытий
- План тёплого пола
- План отопления и кондиционирования
- План отделки
- План потолков
- Развертки помещений
- Визуализации


7. Комплектация
Завершается основная часть проекта комплектацией, в которую входит подбор мебели, материалов, сантехники, освещения, инженерных систем и другого оборудования. Это может сделать как сам заказчик самостоятельно, так и доверить весь подбор дизайнеру.
Грамотно составленная комплектация проекта помогает существенно упростить и сэкономить на реализации проекта, прописываются все необходимые позиции, артикулы, цвета и место, где возможно приобрести.
Комплектация нужна для:
- Сопровождения по закупкам материалов и мебели
- Поиска производителей по индивидуальным позициям
- Контроля за поставляемыми изделиями и материалами
- Расчетов количества материалов и сроков поставок
- Согласования образцов на месте
- Решение технических вопросов

8. Авторский надзор
Основная суть авторского надзора заключается в соблюдении требований рабочей документации при строительстве и контролем за правильностью её выполнения. Также в процессе реализации проекта всегда возникают технические вопросы, которые нужно решать на месте. Даже самые опытные строители иногда вносят свои изменения в процессе ремонта, которые могут значительно повлиять на общую концепцию интерьера.
В состав авторского надзора входит:
- Контроль соответствия работ с проектом, в процессе реализации
- Уточнения технических вопросов по рабочей документации
- Внесение корректировок и доработка необходимых решений
- Подбор отделочных материалом соответствующих проекту и проверка качества
- Обсуждение и решения спорных вопросов со строителями и поставщиками
- Уведомление о ходе ремонта и консультации заказчика

В этой статье мы рассмотрели основные этапы дизайн-проекта для того, чтобы понимать, из чего складывается работа дизайнера. Уже в следующей статье разберем, как связать Фэн Шуй и дизайн-проект, какие основные нюансы нужно соблюсти и на что обратить внимание, чтобы все рекомендации консультанта были полностью выполнены.
Домашнее задание: составить мудборд для вашей квартиры, какой бы вы хотели её видеть в будущем. Можно сделать его полностью вручную на большом листе, либо в какой-нибудь графической программе.
Дмитрий Баров





WOWW!!!
Вот это прям для меня так актуально! Прям магия, как могло появится как раз то что мне надо? Давно таких чудес не было. А главное все так упорядочно, прям как мне нравится.
БЛАГОДАРЮ!!!
Будет интересно почитать еще на эту тему, очень.))